长沙
品牌故事
装修案例
设计团队
施工工艺
五免服务
720°全景
工地报道
点石新闻
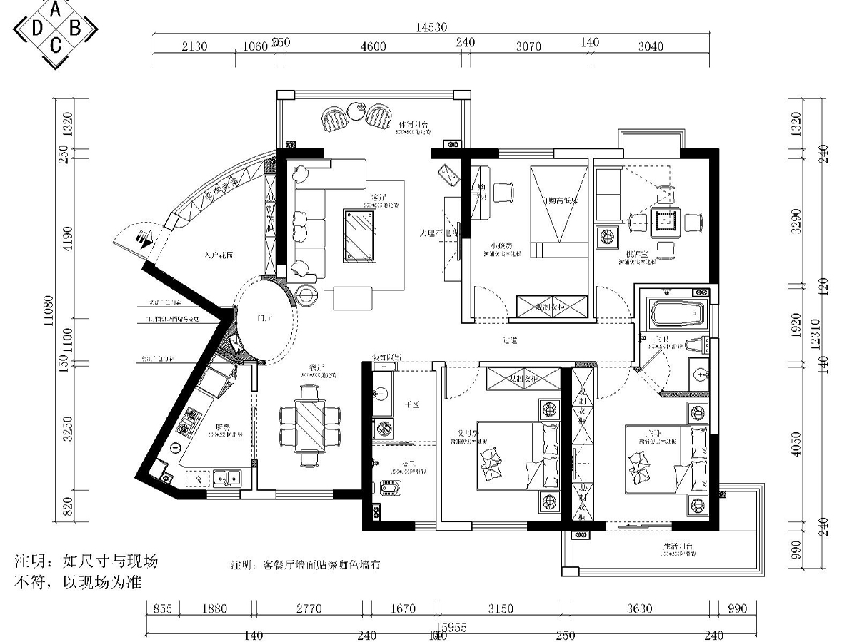
南苑上和 1期
南苑上和 1期
廖琼
后现代|175m²|四居室
廖琼
高级设计师
案例作品:2个|从业经验:8年|所属门店:娄底扶青店
找TA设计
设计师其他案例
和悦家园|欧式|136m²
南苑上和 1期|后现代|175m²
×
全房定制需要多少钱
现代简约10.5-11.5万/百平米
简欧风格10.5-11.5万/百平米
田园风格11.5-12.5万/百平米
地中海风格11.5-12.5万/百平米
中式风格12.5-14.5万/百平米
欧式风格12.5-14.5万/百平米
美式风格12.5-14.5万/百平米
现代简约
简欧风格
田园风格
地中海风格
中式风格
欧式风格
美式风格
一室
二室
三室
四室
四室以上
一厅
二厅
三厅
三厅以上
一厨
二厨
一卫
二卫
三卫
三卫以上
今天已有
238
位业主获取了装修预算
开始计算